Назад
Чтобы участвовать в торгах необходимо авторизоваться на площадке
Аукцион завершён

Комплекс капитальных строений в г. Гродно

Аукцион №
Ч-2025.09.302
Статус
Продано
Начальная цена
326 400.00 BYN (с НДС 20%)
Шаг торгов
16 320.00 BYN (5%)
Размер задатка
32 640.00 BYN
Начало приема заявок
11.09.2025 00:00
Окончание приема заявок
22.09.2025 16:00
Начало торгов
23.09.2025 09:00
Окончание торгов
23.09.2025 17:00
Количество участников допущенных к торгам
3
Суммы возмещаемых расходов и сроки оплаты
Сумма затрат на организацию и проведение торгов
1 257.09 BYN
Срок для возмещения затрат и вознаграждения оператору ЭТП
30 календарныx дней
Хронология торгов
Время Ставка Участник
Продано
23.09.2025 16:50:08 571 200.00 BYN 411
23.09.2025 16:49:44 554 880.00 BYN 412
23.09.2025 16:48:12 538 560.00 BYN 411
23.09.2025 16:48:04 522 240.00 BYN 412
23.09.2025 16:46:59 505 920.00 BYN 411
23.09.2025 16:46:49 489 600.00 BYN 412
23.09.2025 16:44:57 473 280.00 BYN 411
23.09.2025 16:44:09 456 960.00 BYN 412
23.09.2025 16:43:17 440 640.00 BYN 411
23.09.2025 16:43:10 424 320.00 BYN 412
23.09.2025 16:41:55 408 000.00 BYN 411
23.09.2025 16:41:46 391 680.00 BYN 412
23.09.2025 16:40:03 375 360.00 BYN 411
23.09.2025 10:21:07 359 040.00 BYN 412
23.09.2025 09:00:34 342 720.00 BYN 411
Сведения о капитальном строении:
Инвентарный номер: 400/C-61072;
Адрес (местоположение): Гродненская обл., г. Гродно, пер. Железный, 7;
Общая площадь (протяженность): 2109.6;
Наименование: Склады;
Назначение: Здание специализированное складов, торговых баз, баз материально-технического снабжения, хранилищ;
Составные части и принадлежности: шесть пристроек, навес.
Право собственности: Закрытое акционерное общество "Торговый дом "Неман" г. Гродно.
Сведения о земельном участке:
Кадастровый номер: 440100000001003761;
Адрес (местоположение): Гродненская обл., г. Гродно, пер. Железный, 7;
Площадь (га): 0.3728;
Целевое назначение земельного участка: Земельный участок для строительства и обслуживания складов;
Назначение земельного участка в соответствии с единой классификацией назначения объектов недвижимого имущества: Земельный участок для размещения объектов оптовой торговли, материально-технического и продовольственного снабжения, заготовок и сбыта продукции.
Право аренды: Закрытое акционерное общество "Торговый дом "Неман" г. Гродно.
 
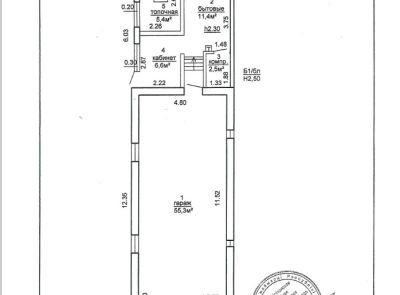
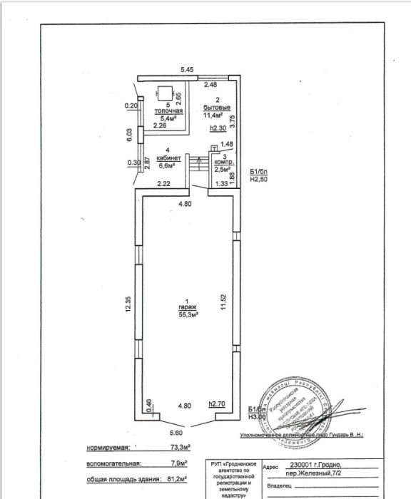
Сведения о капитальном строении:
Инвентарный номер: 400/C-89740;
Адрес (местоположение): Гродненская обл., г. Гродно, пер. Железный, 7/2;
Общая площадь (протяженность): 81.2;
Наименование: гараж;
Назначение: Здание специализированное транспорта;
Составные части и принадлежности: пристройка (Б1/бл).
Право собственности: Закрытое акционерное общество "Торговый дом "Неман" г. Гродно.
Сведения о земельном участке;
Кадастровый номер: 440100000001008385;
Адрес (местоположение): Гродненская обл., г. Гродно, пер. Железный, 7/2;
Площадь (га): 0.0123;
Целевое назначение земельного участка: Земельный участок для строительства и обслуживания гаража;
Назначение земельного участка в соответствии с единой классификацией назначения объектов недвижимого имущества: Земельный участок для размещения автостоянок и (или) гаражей.
Право аренды: Закрытое акционерное общество "Торговый дом "Неман" г. Гродно.
Обременения: Аренда.

Телефон: +375295479430
E-mail: sdirector3@tdn.by
УНП: 500303911
Сведения о публикации в газете: Газета "Рэспублiка", дата публикации 11.09.2025
Наименование: Консалтинговое унитарное предприятие «Независимая экспертная компания»
Адрес: г. Брест, ул. Комсомольская, д. 25
Телефон: тел./факс +375 (29) 729-17-25, +375 (16) 252-52-73
E-mail: mail@nek.by
Реквизиты: р/с BY92ALFA30122111020040270000 в региональном отделении ЗАО «Альфабанк» по Брестской области, (адрес банка: 224030 г. Брест, ул. Советская 56), БИК ALFABY2X УНП 291259884.

Участник электронных торгов осуществляет следующие функции (гл. 4 Регламента):
4.4.1. перечисляет задаток в размерах, указанный в извещении и (или) сведениях об электронных торгах;
4.4.2. знакомится с Регламентом ЭТП, условиями электронных торгов, соглашением о правах и обязанностях сторон в процессе подготовки и проведения электронных торгов, суммой затрат на организацию и проведение электронных торгов, размером вознаграждения организатора электронных торгов;
4.4.3. принимает условия Регламента ЭТП, соглашения о правах и обязанностях сторон в процессе подготовки и подготовки, и проведения электронных торгов, выражает согласие с условиями электронных торгов;
4.4.4. возмещает суммы затрат на организацию и проведение электронных торгов (включая вознаграждение организатора электронных торгов, если его уплата предусмотрена условиями аукциона);
4.4.5. осуществляет иные функции в соответствии с Регламентом.